
HD-tipski dvokolesni žerjav z dvema nosilnima glavama
Evropski nadgradni žerjav z enim nosilcem je kompaktni dvigalni stroji, izdelani in izdelani v skladu s standardom FEM in DIN, ki z napredno tehnologijo in lepim dizajnom. Razdeljen je v splošni tip in vrsto vzmetenja, ki podpira uporabo evropskega standardnega električnega dvigala, primernega za ravnanje z delavnicami in skladišči, za natančno sestavljanje velikih delov in drugih mest.
HD-tipski dvokolesni žerjav z dvema nosilnima glavama
Kratek opis:
Evropski nadgradni žerjav z enim nosilcem je kompaktni dvigalni stroji, izdelani in izdelani v skladu s standardom FEM in DIN, ki z napredno tehnologijo in lepim dizajnom. Razdeljen je v splošni tip in vrsto vzmetenja, ki podpira uporabo evropskega standardnega električnega dvigala, primernega za ravnanje z delavnicami in skladišči, za natančno sestavljanje velikih delov in drugih mest.

Lahko se pogosto uporablja pri proizvodnji strojev, metalurgiji, nafti, petrifikaciji, pristanišču, železnici, civilnem letalstvu, hrani, izdelavi papirja, gradbeništvu, delavnicah elektronskih industrij, skladiščih in drugih materialnih situacijah, esp. ki se nanašajo na ravnanje z materiali, ki potrebujejo natančno pozicioniranje, velike sestavne dele natančno stanje montaže.

Podrobne fotografije:

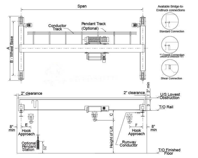
Skica Risba:

Tehnični parametri:
Razpon | m | 7.5 | 10.5 | 13.5 | 16.5 | 19.5 | 22.5 | 25.5 |
Zmogljivost | t | 1 ~ 12,5 t | ||||||
Totalna teža | kg | 1781 ~ 12086 | ||||||
Teža vozička | kg | 405 ~ 740 | ||||||
Max. Obremenitev koles | kn | 13,5 ~ 90,94 | ||||||
Potniški tir | P24 ~ P43 | |||||||
Hitrost dvigovanja | m / min | 0,8 / 5 | 0,8 / 5 | 0,8 / 5 | 0,8 / 5 | 0,8 / 5 | 0,8 / 5 | 0,8 / 5 |
Dvigalna višina | m | ≥ 6 | ≥ 6 | ≥ 6 | ≥ 6 | ≥ 6 | ≥ 6 | ≥ 6 |
Skupna moč motorja | kw | 4.31 | 4.31 | 4.31 | 4.31 | 4.67 | 4.67 | 4.67 |
Hitrost žerjava | m / min | 3-30 | 3-30 | 3-30 | 3-30 | 3-30 | 3-30 | 3-30 |
Hitrost vozička | m / min | 2-20 | 2-20 | 2-20 | 2-20 | 2-20 | 2-20 | 2-20 |
Delovna dolžnost | M5 / A5 | |||||||


English
עברית
Malti
türkiye
日本語
Norsk
Polski
suomi
Eesti
Català
فارسی
Latviešu





